Ufficio in affitto

Azzano Decimo, via Mores di Sotto
€ 1.700 / mese
1 locale 1 locale
217 Mq 217 Mq
1 bagno 1 bagno

Ufficio in affitto

Azzano Decimo, via Mores di Sotto

Descrizione annuncio

Tecnocasa la più grande rete di intermediazione in Europa con 2807 punti vendita in Italia e 4022 nel mondo vi propone:

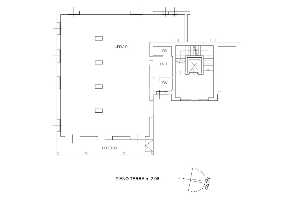
A pochi passi dal centro e in zona comoda ai principali servizi, proponiamo in vendita/affitto un ampio ufficio di 217 m²situato al piano terra di un condominio moderno, costruito nel 2010.

L’immobile si presenta in ottime condizioni ed è caratterizzato da spazi interni versatili, ideali per studi professionali, attività amministrative o realtà che necessitano di ambienti ampi e facilmente personalizzabili.

Dispone di un bagno dotato di due servizi separati, garantendo funzionalità e praticità per clienti e personale.

La posizione strategica, la vicinanza al centro e la collocazione al piano terra lo rendono un’opportunità interessante per chi cerca una soluzione professionale subito disponibile e ben collegata.

Mostra tutto

Nelle vicinanze

Trasporto pubblico Trasporto pubblico
Azzano X - Via 25 Aprile (Fr. Banca)
Azzano X - Via 25 Aprile (Fr. Banca)
140 m
Azzano X - Via 25 Aprile (Banca)
Azzano X - Via 25 Aprile (Banca)
140 m
Ricariche auto elettriche Ricariche auto elettriche
Azzano Trieste
300 m
Scuole Scuole
Scuola primaria “Cesare Battisti”
420 m
Scuola secondaria di I grado “Luigi Luzzatti”
570 m
Farmacia Farmacia
Farmacia Innocente
230 m
Farmacia Comunale
470 m
Casa del Benessere
1,7 Km
Supermercati Supermercati
Despar
60 m
Crai
100 m
iN's mercato
380 m
Coop
450 m
Eurospin
860 m
Negozi Negozi
Panificio Panontin
150 m
DF Panificio Salumeria
270 m
Samma maglieria
350 m
Original Marines
490 m
Bar Bar
Havana Bar
170 m
Bar Centrale
180 m
White Caffè
180 m
Bar
240 m
Ca' Muliner
990 m
Ristoranti Ristoranti
Ristorante Pizzeria da Jenny
370 m
Pizzeria Aladino
370 m
Ca' Muliner
1,0 Km
Ristorante Muretto
1,7 Km
Alla Curva
2,0 Km
Mostra tutto

Caratteristiche

Rif.:
61145388
Piano:
Terra di 4 con ascensore
Totale piani:
4
Condizionamento:
Predisposizione impianto
Ascensore:
Riscaldamento:
Autonomo
Mostra tutto
Prezzo Prezzo
€ 1.700 / mese
Spese annue Spese annue
€ 400

Altre caratteristiche

Descrizione dei locali
Bagno Con Finestra

Classe Energetica

C
C
C
C
C
C
C
C
C
EP globale non rinnovabile:
179.89 kW h/m² anno
EP globale rinnovabile:
12.32 kW h/m² anno
EP invernale del fabbricato:
EP estiva del fabbricato:
Anno di costruzione:
2010
Riscaldamento:
Autonomo
Tipo impianto:
Ad aria
Tipo alimentazione:
Metano

Ti interessa visionare l'immobile?

Fissa un appuntamento  Fissa un appuntamento

Richiedi informazioni

Clicca su Leggi per aprire l'informativa
* Questi campi sono obbligatori
Affiliato
Decimo Azzano Srl
P.zza Libertà, 19 33082 Azzano Decimo (PN)

Il nostro staff


  • Sara Poles
    Coordinatrice

  • Elia Tecli
    Affiliato
P.zza Libertà, 19 33082 Azzano Decimo (PN)
Zona: Azzano Decimo
Mostra su mappa
Orari: LUNEDI' - VENERDI' 09:00 - 13:00 15:00 - 19:30 SABATO 9:30 - 13:00 DOMENICA SU APPUNTAMENTO
Affiliato
Decimo Azzano Srl
P.zza Libertà, 19 33082 Azzano Decimo (PN)

2026 Tecnocasa Franchising S.p.A. - P. IVA 08365160152 - Via Monte Bianco 60/A 20089 Rozzano (MI). Ogni agenzia ha un proprio titolare ed è autonoma. Privacy policy | Policy utilizzo | Cookie policy