Laboratorio in vendita

Chions, Via degli Olmi
€ 180.000
10 locali 10 locali
825 Mq 825 Mq
5 bagni 5 bagni

Laboratorio in vendita

Chions, Via degli Olmi

Descrizione annuncio

Tecnocasa la più grande rete di intermediazione in Europa con 2807 punti vendita in Italia e 4022 nel mondo vi propone:

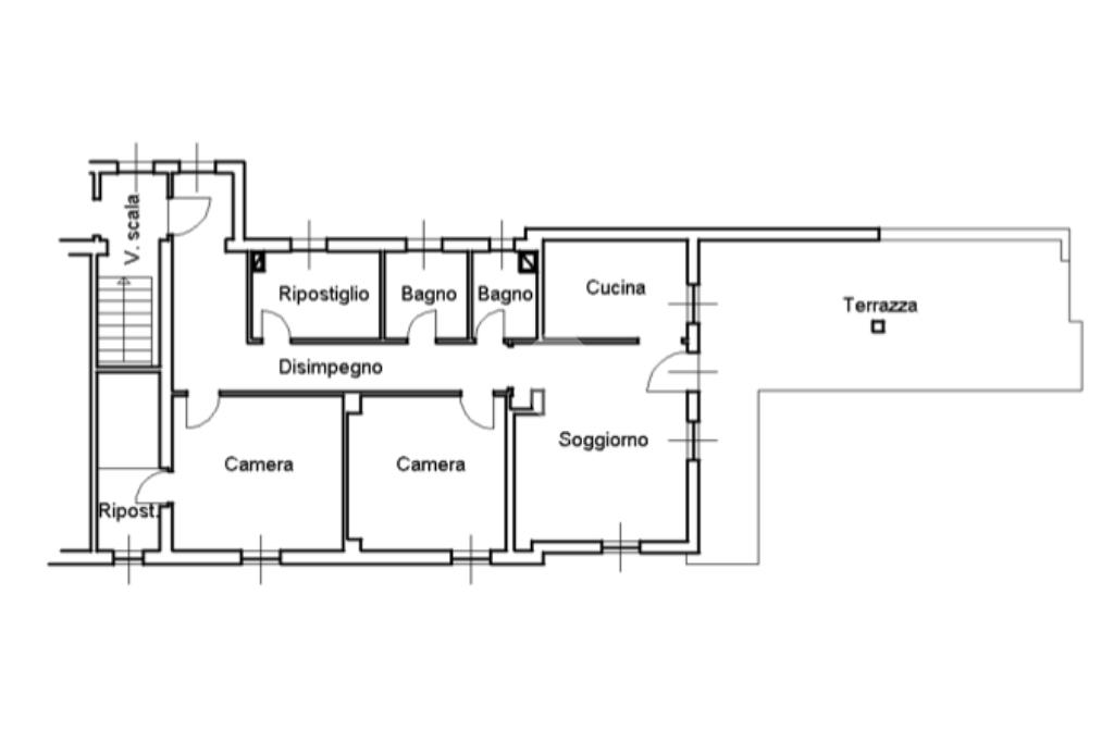
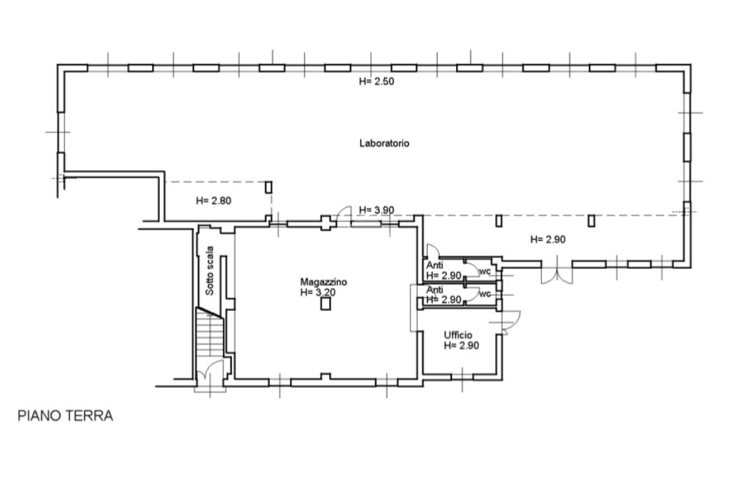
Stabile indipendente in vendita, soluzione interessante per chi è alla ricerca di spazi versatili da destinare ad attività artigianali e abitazione.

La proprietà si compone di tre laboratori e un appartamento. Attualmente l’abitazione e uno dei laboratori risultano locati, mentre gli altri due spazi sono inutilizzati e necessitano di interventi di manutenzione per poter essere pienamente sfruttati.

Sul retro si sviluppa un ampio terreno edificabile, particolarmente spazioso e dotato di ingresso comodo, che offre ulteriori possibilità di ampliamento o di nuova realizzazione.

La soluzione si presta a diverse interpretazioni progettuali, risultando ideale per chi desidera riqualificare e valorizzare un immobile indipendente con interessante potenziale di sviluppo.

Mostra tutto

Nelle vicinanze

Trasporto pubblico Trasporto pubblico
Chions - Via Roma (Bar)
Chions - Via Roma (Bar)
150 m
Chions - Via Roma (Sc. Elementari)
Chions - Via Roma (Sc. Elementari)
150 m
Scuole Scuole
Scuola secondaria di 1° “Italo Svevo”
100 m
Scuola primaria statale “Berengario Ortis”
520 m
Scuola Primaria “Nazario Sauro”
2,2 Km
Farmacia Farmacia
Farmacia Collovini
300 m
Supermercati Supermercati
Supermercato Crai
330 m
Crai
350 m
Negozi Negozi
Samma Shop
80 m
Reginato
110 m
Bar Bar
Bar alla Pesa
200 m
Bar
290 m
Snack-bar Perbacco
320 m
Sprizz Bar
2,2 Km
Bar di Doi Trattoria
2,7 Km
Ristoranti Ristoranti
ai 3 archi
1,1 Km
Tashica Social Club
2,3 Km
Mostra tutto

Caratteristiche

Rif.:
61180106
Piano:
2 di 2 (Piano su più livelli)
Box:
1
Balconi:
2
Condizionamento:
Assente
Ascensore:
No
Mostra tutto
Prezzo Prezzo
€ 180.000
Rata mutuo Rata mutuo
€ 855 / mese
Spese annue Spese annue
€ 0
Proponi il tuo prezzoProponi il tuo prezzo

Altre caratteristiche

Descrizione dei locali
Bagno Con Finestra

Classe Energetica

G
G
G
G
G
G
G
G
G
EP globale non rinnovabile:
277.17 kW h/m² anno
EP globale rinnovabile:
0.80 kW h/m² anno
EP invernale del fabbricato:
EP estiva del fabbricato:
Anno di costruzione:
1980
Riscaldamento:
Autonomo
Tipo impianto:
A radiatori
Tipo alimentazione:
Metano

Ti interessa visionare l'immobile?

Fissa un appuntamento  Fissa un appuntamento

Richiedi informazioni

Clicca su Leggi per aprire l'informativa
* Questi campi sono obbligatori

Calcola il tuo mutuo

Semplice e senza impegno
Anticipo

( % )
Mutuo

( % )

pochi semplici passi

inserisci i tuoi dati
Questionario completato
Grazie per aver richiesto un appuntamento senza impegno con un nostro Consulente del Credito e Assicurativo.

Hai inserito correttamente tutti i dati necessari e a breve riceverai una e-mail con un link da convalidare per inviare i tuoi dati.
Affiliato
Decimo Azzano Srl
P.zza Libertà, 19 33082 Azzano Decimo (PN)

Il nostro staff


  • Sara Poles
    Coordinatrice

  • Elia Tecli
    Affiliato
P.zza Libertà, 19 33082 Azzano Decimo (PN)
Zona: Azzano Decimo
Mostra su mappa
Orari: LUNEDI' - VENERDI' 09:00 - 13:00 15:00 - 19:30 SABATO 9:30 - 13:00 DOMENICA SU APPUNTAMENTO
Affiliato
Decimo Azzano Srl
P.zza Libertà, 19 33082 Azzano Decimo (PN)

2026 Tecnocasa Franchising S.p.A. - P. IVA 08365160152 - Via Monte Bianco 60/A 20089 Rozzano (MI). Ogni agenzia ha un proprio titolare ed è autonoma. Privacy policy | Policy utilizzo | Cookie policy